MG07K057-A00X074S1
Can't find what you're looking for? Go to the Product Selector
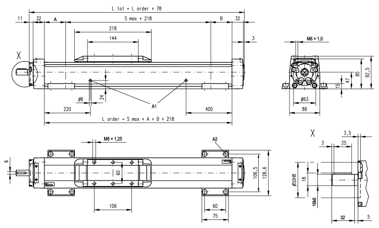
直線運動單元, Movopart M75, 滾珠絲桿 Drive, 棱柱 Guide, 0.05 毫米 Repeatability, 無預加載, 512 毫米 Stroke, 818 毫米 Overall Length, 單個標準滑塊, 5 毫米 Travel Per Shaft Rev, Single Shaft With Keyway, Wash Down Protection, 416.67 Maximum Linear Speed, 取代
- 取代
- 自調節不銹鋼帶蓋
- 專利內部自調節棱形滑動導軌
- 可選用沖洗防護型
